1 .. 17 18 19 20 21 22 23 24 25 26 27 .. 154
19
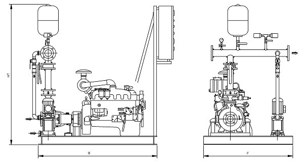
Dimensiones Grupo DIESEL + JOCKEY
Tecnología Japonesa desde 1912
Grupos Contra Incendios
www.ebara.es
UNE 23-500-90
(
DBA:
Diámetro Boca de Aspiración -
DCI:
Diámetro Colector de Impulsión)                                             
EBARA se reserva el derecho de introducir modificaciones sin previo aviso.
Bomba
Pot.
Tipo(*)
Bomba
Pot.
Dimensiones (mm)
Principal
kW
Diesel
Jockey
kW
DBA
DCI
F
B
HT
RY 103
5,6
RY103
CVM A/10
0,75
50
2"
740
950
1550
3P 32-200
6,3
RY110
CVM A/12
0,9
50
2"
845
1100
1550
3P 40-200
6,3
RY110
CVM A/10
0,75
65
2 1/2"
845
1100
1630
3P 40-200
8
M 600
CVM A/12
0,9
65
2 1/2"
845
1100
1630
3P 40-200
13,6
RD 210
CVM A/15
1,1
65
2 1/2"
950
1100
1650
ENR 32-200
6,3
RY110
CVM A/12
0,9
50
2"
845
1100
1550
ENR 32-200
8
M 600
CVM A/15
1,1
50
2"
845
1100
1550
ENR 32-200
13,6
RD 210
CVM A/15
1,1
50
2"
950
1100
1570
ENR 32-250
8
M 600
CVM A/15
1,1
50
2"
845
1100
1615
ENR 32-250
13,6
RD 210
CVM B/25
1,85
50
2"
950
1100
1635
ENR 32-250
17,6
RD 290
CVM B/25
1,85
50
2"
950
1200
1635
ENR 40-200
6,3
RY110
CVM A/10
0,75
65
2 1/2"
845
1100
1630
ENR 40-200
8
M 600
CVM A/10
0,75
65
2 1/2"
845
1100
1630
ENR 40-200
13,6
RD 210
CVM A/12
0,9
65
2 1/2"
950
1100
1650
ENR 40-200
17,6
RD 290
CVM A/15
1,1
65
2 1/2"
950
1200
1650
ENR 40-250
13,6
RD 210
CVM A/15
1,1
65
2 1/2"
950
1100
1715
ENR 40-250
17,6
RD 290
CVM B/25
1,85
65
2 1/2"
950
1200
1715
ENR 40-250
21,2
MD 350
CVM B/25
1,85
65
2 1/2"
950
1300
1715
ENR 40-315
21,2
MD 350
MVP 5-380/12
3,8
65
2 1/2"
950
1400
1785
ENR 40-315
26,8
SP 420
MVP 5-380/12
3,8
65
2 1/2"
1200
1500
1785
ENR 40-315
31,6
LDW 2204
MVP 5-380/12
3,8
65
2 1/2"
1200
1500
1805
ENR 40-315
48
8031 i40
EVMSG 3-23
2,2
65
2 1/2"
1200
1600
1805
ENR 50-200
13,6
RD 210
CVM A/10
0,75
65
3"
950
1100
1735
ENR 50-200
17,6
RD 290
CVM A/12
0,9
65
3"
950
1200
1735
ENR 50-200
21,2
MD 350
CVM A/15
1,1
65
3"
950
1300
1735
ENR 50-250
17,6
RD 290
CVM A/15
1,1
65
3"
950
1200
1780
ENR 50-250
21,2
MD 350
CVM A/15
1,1
65
3"
950
1300
1780
ENR 50-250
26,8
SP 420
CVM B/23
1,7
65
3"
1200
1400
1780
ENR 50-250
31,6
LDW 2204
CVM B/25
1,85
65
3"
1200
1400
1820
ENR 50-315
31,6
LDW 2204
MVP 5-380/12
3,8
65
100
1200
1500
1975
ENR 50-315
48
8031 i40
MVP 5-380/12
3,8
65
100
1200
1600
1975
ENR 50-315
63
D229,4
EVMSG 3-21
2,2
65
100
1200
2000
2020
ENR 50-315
95
D229,6
EVMSG 3-23
2,2
65
100
1200
2300
2050
ENR 65-200
17,6
RD 290
CVM A/10
0,75
80
125
950
1200
1880
ENR 65-200
21,2
MD 350
CVM A/12
0,9
80
125
950
1300
1880
TABLA DE DIMENSIONES
Bomba
Pot.
Tipo(*)
Bomba
Pot.
Dimensiones (mm)
Principal
kW
Diesel
Jockey
kW
DBA
DCI
F
B
HT
ENR 65-200
26,8
SP 420
CVM A/15
1,1
80
125
1200
1400
1880
ENR 65-200
31,6
LDW 2204
CVM A/15
1,1
80
125
1200
1400
1920
ENR 65-250
26,8
SP 420
CVM A/15
1,1
80
125
1200
1500
1925
ENR 65-250
31,6
LDW 2204
CVM A/15
1,1
80
125
1200
1500
1945
ENR 65-250
48
8031 i40
CVM B/25
1,85
80
125
1200
1600
1945
ENR 65-315
48
8031 i40
MVP 5-380/12
3,8
80
125
1200
1600
2000
ENR 65-315
63
D229,4
MVP 5-380/12
3,8
80
125
1200
2000
2045
ENR 65-315
95
D229,6
EVMSG 3-23
2,2
80
125
1200
2300
2075
ENR 80-200
21,2
MD 350
CVM A/12
0,9
100
150
950
1400
2000
ENR 80-200
26,8
SP 420
CVM A/15
1,1
100
150
1200
1500
2000
ENR 80-200
31,6
LDW 2204
CVM A/15
1,1
100
150
1200
1500
2020
ENR 80-200
48
8031 i40
CVM A/15
1,1
100
150
1200
1600
2020
ENR 80-250
31,6
LDW 2204
CVM A/15
1,1
100
150
1200
1500
2050
ENR 80-250
48
8031 i40
CVM A/15
1,1
100
150
1200
1600
2050
ENR 80-250
63
D229,4
CVM B/25
1,85
100
150
1200
2000
2120
ENR 80-250
95
D229,6
CVM B/25
1,85
100
150
1200
2300
2120
ENR 80-315
63
D229,4
MVP 5-380/12
3,8
100
150
1200
2000
2155
ENR 80-315
95
D229,6
MVP 5-380/12
3,8
100
150
1200
2300
2185
ENR 80-315
95
D229,6
EVMSG 3-21
2,2
100
150
1200
2300
2185
ENR 100-200
31,6
LDW 2204
CVM A/12
0,9
125
200
1200
1500
2260
ENR 100-200
48
8031 i40
CVM A/15
1,1
125
200
1200
1600
2260
ENR 100-250
48
8031 i40
CVM A/15
1,1
125
200
1200
1600
2285
ENR 100-250
63
D229,4
CVM B/23
1,7
125
200
1200
2000
2330
ENR 100-250
95
D229,6
CVM B/25
1,85
125
200
1200
2300
2330
ENR 100-250
125
TD229 6EC
MVP 5-380/12
3,8
125
200
1200
2300
2330
ENR 100-315
95
D229,6
MVP 5-380/12
3,8
125
200
1200
2300
2265
ENR 125-200
63
D229,4
CVM A/12
0,9
150
200
1200
2000
2365
ENR 125-200
95
D229,6
CVM A/15
1,1
150
200
1200
2300
2395
ENI 100-250
94,5
D 229-6
CVM B/25
1,85
125
200
1200
2300
2230
ENI 100-250
94,5
D 229-6
CVM B/25
1,85
125
200
1200
2300
2230
ENI 100-250
125
TD229.EC6
MVP 5-380/12
3,8
125
200
1200
2300
2230
ENI 125-250
94,5
D 229-6
CVM B/25
1,85
150
250
1200
2300
2385
ENI 125-250
125
TD229.EC6
CVM B/25
1,85
150
250
1200
2300
2385
ENI 125-250
145
6,10 T
CVM B/25
1,85
150
250
1200
2300
2385
ENI 125-250
183
6,10 TCA
MVP 5-380/12
3,8
150
250
1200
2300
2385
DCI
DBA
(*) Tipo y modelo de motor diesel orientativo, a confirmar por EBARA en el momento del pedido.